Vermietete Eigentumswohnung mit Sonnenbalkon
Zum Verkauf steht eine vermietete Eigentumswohnung im Bonner Zentrum, in fußläufiger Entfernung zur Rheinpromenade.
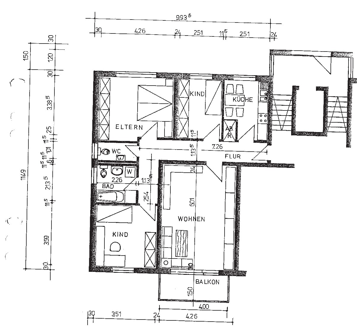
Die Wohnung ist aufgeteilt in einen geräumigen Flurbereich mit Einbauschrank (Garderobe), Küche, geräumiges Wohn-/Esszimmer mit Zutritt zum Sonnenbalkon, 3 weitere Zimmer unterschiedlicher Größe, ein Duschbad sowie ein separates Gäste-WC.
Der Flurbereich der Wohnung ist mit einem beigen Natursteinboden ausgestattet; die Wohn-/Schlafzimmer verfügen über einen Laminatboden. In der Küche ist ein PVC-Oberbelag eingebracht.
Das Badezimmer (mit Anschluss für die eigene Waschmaschine) und das Gäste-WC wurden vor einigen Jahren modernisiert und sind aktuell zeitlos weiß gefliest und mit weißer Keramik ausgestattet.
Alle Fenster der Wohnung sind in Isolierverglasung (Kunststoff) ausgeführt. Gemäß den uns vor-liegenden Unterlagen erfolgte die Erneuerung der Fenster ca. in 2011.
Die derzeitigen Mieteinnahmen betragen p.a. € 10.020,– (zzgl. Betriebskosten).
Weiter Details auf Anfrage.
Die vom Käufer zahlbare Maklerprovision beträgt 2,38% (inkl. MwSt.), berechnet vom beurkundeten Kaufpreis.
| Kaufpreis: | 240.000,-- EUR |
| Hauskosten: | ca. 385,-- EUR |
| Jährl. Mieteinnahmen (Ist): | 10.020,-- EUR |
| Provision für Käufer: | 2,38 % |
| Provision für Verkäufer: | 2,38 % |
| Dachform: | Flachdach |
| Ausbaustufe: | fertig gestellt |
| Wohneinheiten: | 17 |
| Zimmer: | 4 |
| Schlafzimmer: | 2 |
| Badezimmer: | 1 |
| Kellerräume: | 1 |
| Wohnfläche: | ca. 91 m² |
| Kellerfläche: | ca. 5 m² |
| Etage: | 5 |
| Etagen: | 5 |
| Baujahr: | 1972/1973 |
| Objektzustand: | gepflegt |
| Ausstattungskategorie: | normal |
| Heizungsart: | Gastherme |
| Befeuerungsart: | Erdgas |
| Baujahr lt. Energieausweis: | 1974 |
| Energieeffizienzklasse: | D |
| Wert des Endenergieverbrauchs: | 121 |
| Art des Energieausweises: | Vebrauchsausweis |
| Gültigkeit des Energieausweises: | 2027 |




